otros
modelos: combi
50/66D
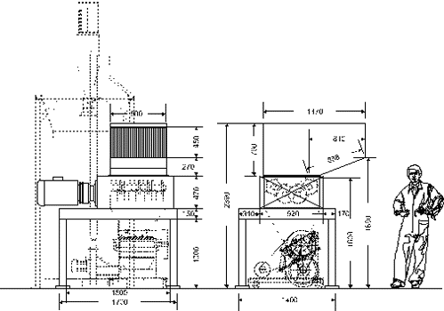
Equipo de trituración y granulación combinado
para la moledura directa de cuerpos de material plástico
de gran volumen.
Esta máquina permite obtener una moledura fina con granulometría
incluída entre 4 y 8-10 mm reutilizable directamente en el
ciclo de producción. El grupo de trituración con boca
de 800 x 800 mm garantiza la aprehensión y moledura de bidones,
bloques de expurgación, mazarotas, tiestos y piezas voluminosas
de gran espesor.
Notas de utilización :
Máquina de medianas dimensiones muy polivalente, indicada
para la granulación de numerosos materiales de desechos o
no. Se puede insertar en línea para el funcionamiento continuo.
Aconsejada para las operaciones de moledura fina de madera, plástico,
goma, papel, cartón, embalajes, cintas de polietileno, películas
plásticas, botellas en PET, toldos impermeabilizados, cáscaras,
parachoques, cascos de animales, etc.
 |
| Click sobre por zoom |
Principales características del grupo Tritotutto
80/80D :
- potencia instalada: 10 HP - 10 HP
- boca: 800 x 800 mm
- transmisión : por engranajes
- número de ejes fresas : 2
- número de fresas templadas : 42
- número de ejes de introducción: 2
- número de discos de introducción: 42
- n° de rev./min. fresas: 25
Principales características del molino GR 500:
- base en perfiles y tubulares de acero;
- grupo cuchillas fijas regulables axialmente;
- cámara de alojamiento insonorizada, dotada de puerta
de seguridad para sacar el molino sobre carriles;
- rejilla intercambiable para pedazos de hasta 4 mm;
- transmisión por medio de correas trapezoidales de alta
resistencia sobre volante;
- motor de 5,5 kW colocado sobre correderas para la regulación
optimal de la tensión de las correas;
- cuadro eléctrico conforme normas CEE, dotado de limitador
de par que invierte el movimiento de las fresas caso que la carga
de desempeño de la máquina supere el valor configurado.
La producción de virutas varía en función
de la tipología de las piezas a triturar y de los pedazos
que se desea obtener. En general se puede prever una producción
de 450-600 Kg/hora Ejecución conforme normas CE.
|