altri
modelli: combi
80/80D
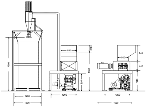
Impianto di triturazione e granulazione combinato per la macinazione
diretta di corpi di materiale plastico di grande volume.
Questa macchina consente di ottenere macinato fine con granulometria
che va dai 4 agli 8-10 mm reimpiegabile direttamente nel ciclo produttivo.
La combinazione delle due macchine garantisce una riduzione sensibile
dei costi d’investimento ed esercizio, nonché una rumorosità
dell’impianto ridotta.
Note d'impiego:
Macchina di medie dimensioni molto polivalente, adatta per la granulazione
di numerosi materiali di scarto e non. Può essere inserita
in linea per il funzionamento in continuo.
Consigliata per le operazioni di macinazione fine di legna, plastica,
gomma, carta, cartone, imballi, nastri di polietilene, film plastici,
bottiglie in PET, teloni cerati, gusci, paraurti, zoccoli animali,
ecc.
 |
| Clicca sull'immagine per ingrandirla |
Principali caratteristiche del gruppo: Tritotutto 50/66D
- potenza installata : 7,5 HP - 10 HP
- bocca: 500 x 660 mm
- trasmissione : ad ingranaggi
- nr. alberi frese : 2
- nr. frese temperate : 26
- nr. alberi introduttori : 2
- nr. dischi introduttori : 26
- nr. medio giri frese/min : 25
Principali caratteristiche del mulino GR 300:
- basamento in profilati e tubolari di acciaio;
- gruppo lame fisse regolabili assialmente;
- camera di alloggiamento insonorizzata, munita di sportello con
sicurezza per l’estrazione del mulino su rotaie;
- griglia intercambiabile per pezzature fino a 4 mm;
- trasmissione mezzo cinghie trapezoidali ad alta resistenza su
volano;
- motore da 5,5 kW posizionato su slitte per la regolazione ottimale
della tensione delle cinghie;
- quadro elettrico a norme CEE, dotato di limitatore di coppia
che inverte il moto delle frese nel caso in cui il carico di lavoro
della macchina superi il valore impostato.
La produzione di materiale truciolato varia in relazione alla tipologia
dei pezzi da triturare e della pezzatura che si vuole ottenere.
Di massima, si può ipotizzare una produzione di 200-300 Kg/ora
Esecuzione a norme CE.
|